LoCo Architectes

Architecte

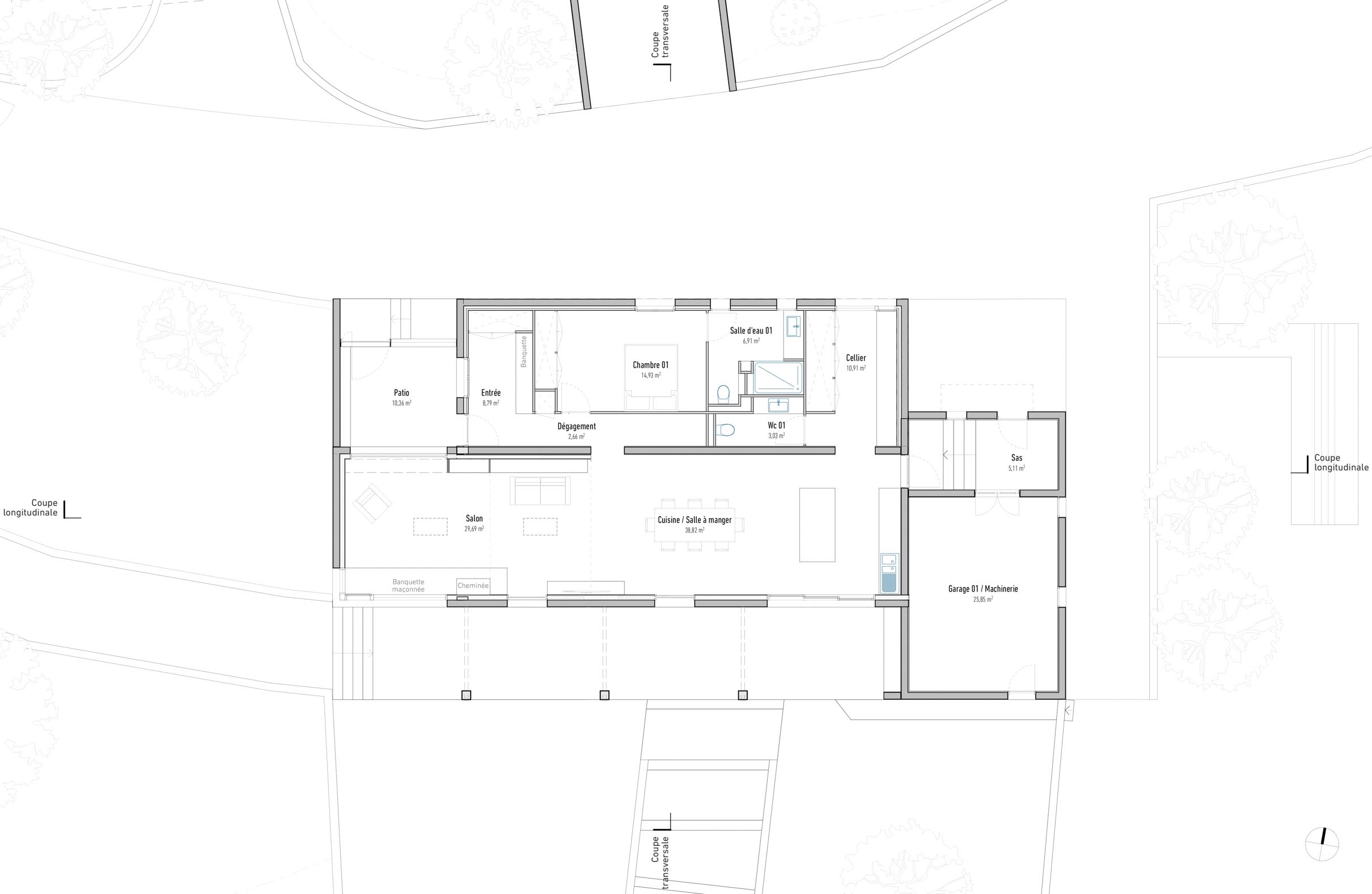
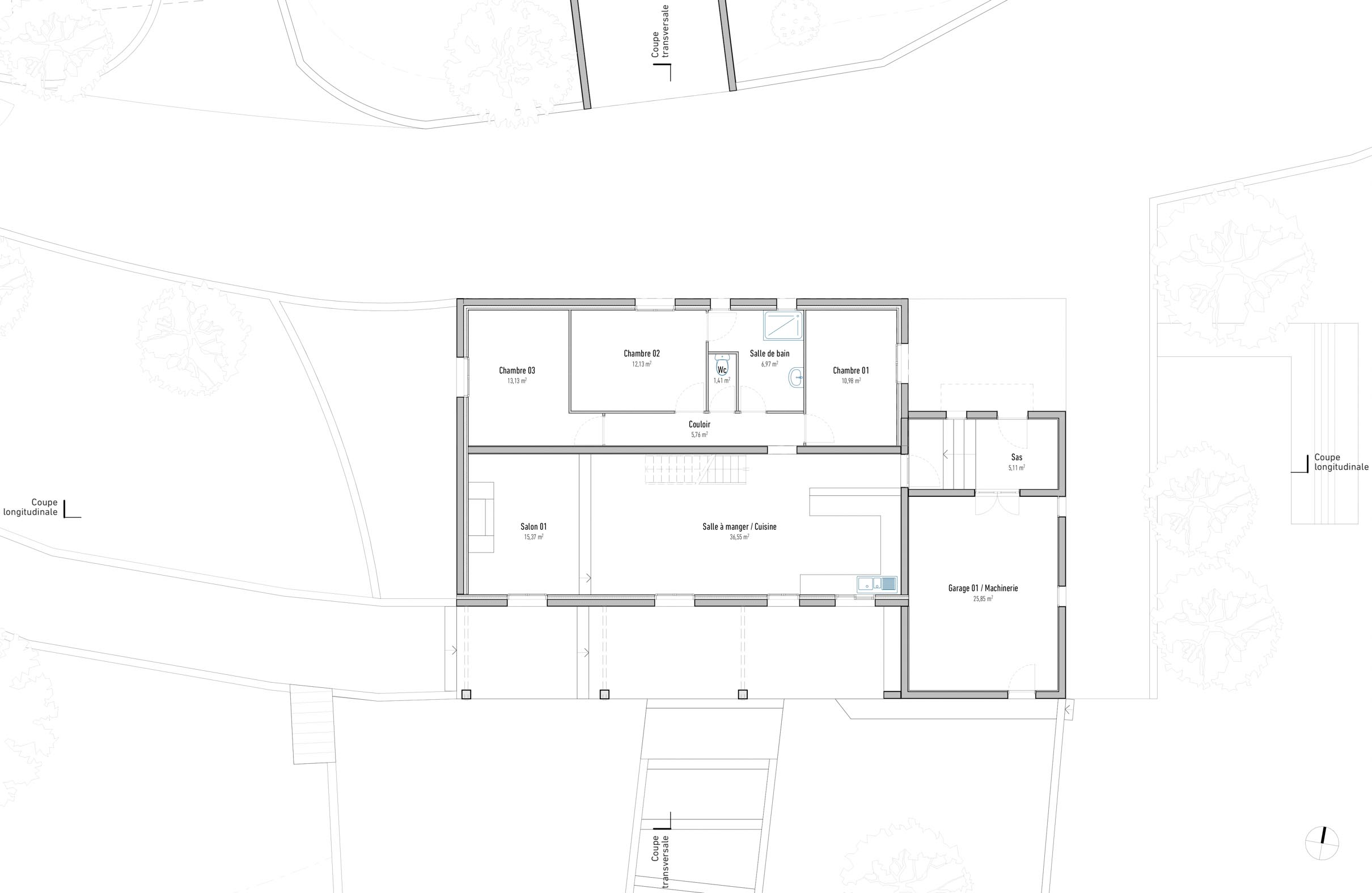
Beaucaire

Architecture

Maison
Rénovation
Extension
Patio
Corentin Divol
Loïc Raineval
Fermer
Fermer