-
CFA Sanitaire et Social
Montpellier, Hérault (34), France
Professionnel - chantier en cours
Au cœur du quartier Euromédecine à Montpellier, un ancien bâtiment de bureaux datant de 1999 s’élève. Il se développe sur deux niveaux et est revêtu d’une façade en béton désactivé au calepinage ordonné.
-
-
-
-
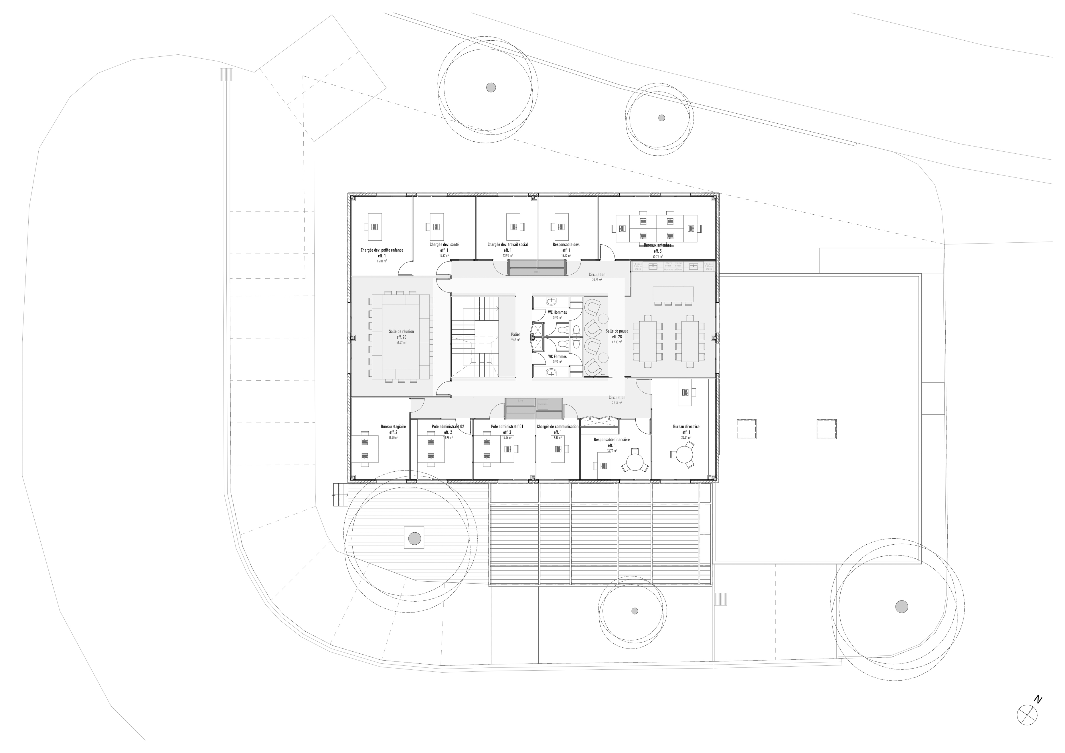
Le projet consiste en la rénovation intérieure du bâtiment. Des salles de formations sont aménagées, tout comme les différents bureaux nécessaires au bon fonctionnement du Centre de Formation et d’Apprentissage Sanitaire et Social.
-
-
-
Une salle de réunion et une salle de pause y sont créées en ajout des bureaux existants remodelés.
-
-
Le parvis extérieur est revalorisé afin d’offrir aux visiteurs une atmosphère plus accueillante. L’enrobé existant est déposé pour laisser place à un jardin méditerranéen et à une terrasse couverte d’une pergola. Cette pergola est le support au développement de pieds de jasmins, offrant ombre et fraîcheur.
-
-
La seconde phase concerne la création des modifications qu’apporte le projet au bâtiment et à ses extérieurs. Les nouvelles cloisons sont implantées. La terrasse et la rampe sont coffrées avant d’être coulées en béton désactivé.
-
-
-
Budget du projet
--- --- € HT (chantier en cours)
Entreprises
Lot 01 / Cloisons / Faux plafonds // PLAQUISTE DU PIC
Lot 02 / Menuiseries intérieures // ETABLISSEMENTS BASTIDE
Lot 03 / Revêtements de sols // SOL CONCEPT
Lot 04 / Eléctricité // MOHAMED EL OUARDI
Lot 05 / Plomberie / Chauffage Ventilation Climatisation // A'CLIMATIS
Lot 06 / Cuisines // METO & CO
Lot 07 / Aménagements / Mobilier // ETABLISSEMENTS BASTIDE
Lot 08 / Peintures // PLAQUISTE DU PIC
Lot 09 / Maçonnerie // LAKOUMBAT
Lot 10 / Paysagisme // GARDEN & JO
Lot 11 / Ferronnerie // FMC
Bureau de contrôle
-
-
-
-
-
-
Le rez-de-chaussée est ponctué par la création d’alcôves accueillant banquettes et bibliothèque. Une large pièce y est créée comme foyer pour les apprentis, offrant une cuisine et des espaces de détente. L’ensemble du premier niveau est rendu accessible aux personnes à mobilité réduite, le bâtiment étant classé en ERP cinquième catégorie.
-
-
-
-
Le chantier a été réparti en deux phases. La première consiste en la dépose, le curage et la déconstruction de certaines éléments tels que des cloisons, les faux plafonds, les sols, etc.
-
-