-
Atelier B.
Livron-sur-Drôme, Drôme (26), France
Particulier - non construit
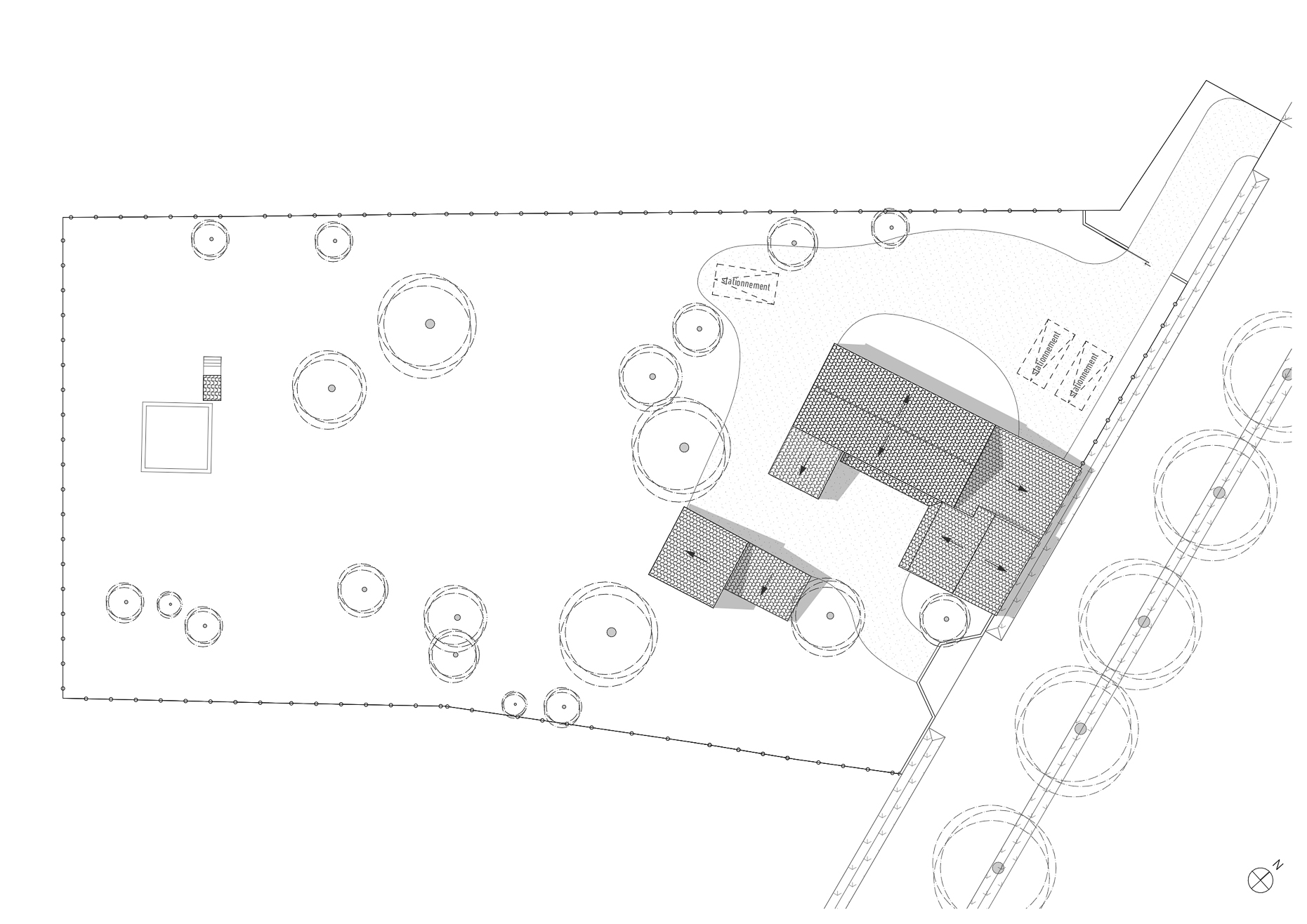
Aux portes de la vallée de la Drôme, balayée par le mistral s’engouffrant dans le sillon du Rhône, une ancienne bâtisse en galets se dresse. Elle est composée d’un volume principal sur deux niveaux, et d’un volume annexe en rez-de-jardin.
-
-
A cela s’ajoute la rénovation de la piscine de la propriété, implantée au sud-ouest, au fond du jardin. Cette rénovation est accompagnée par la création d’un pool house intégrant le local technique du bassin.
-
-
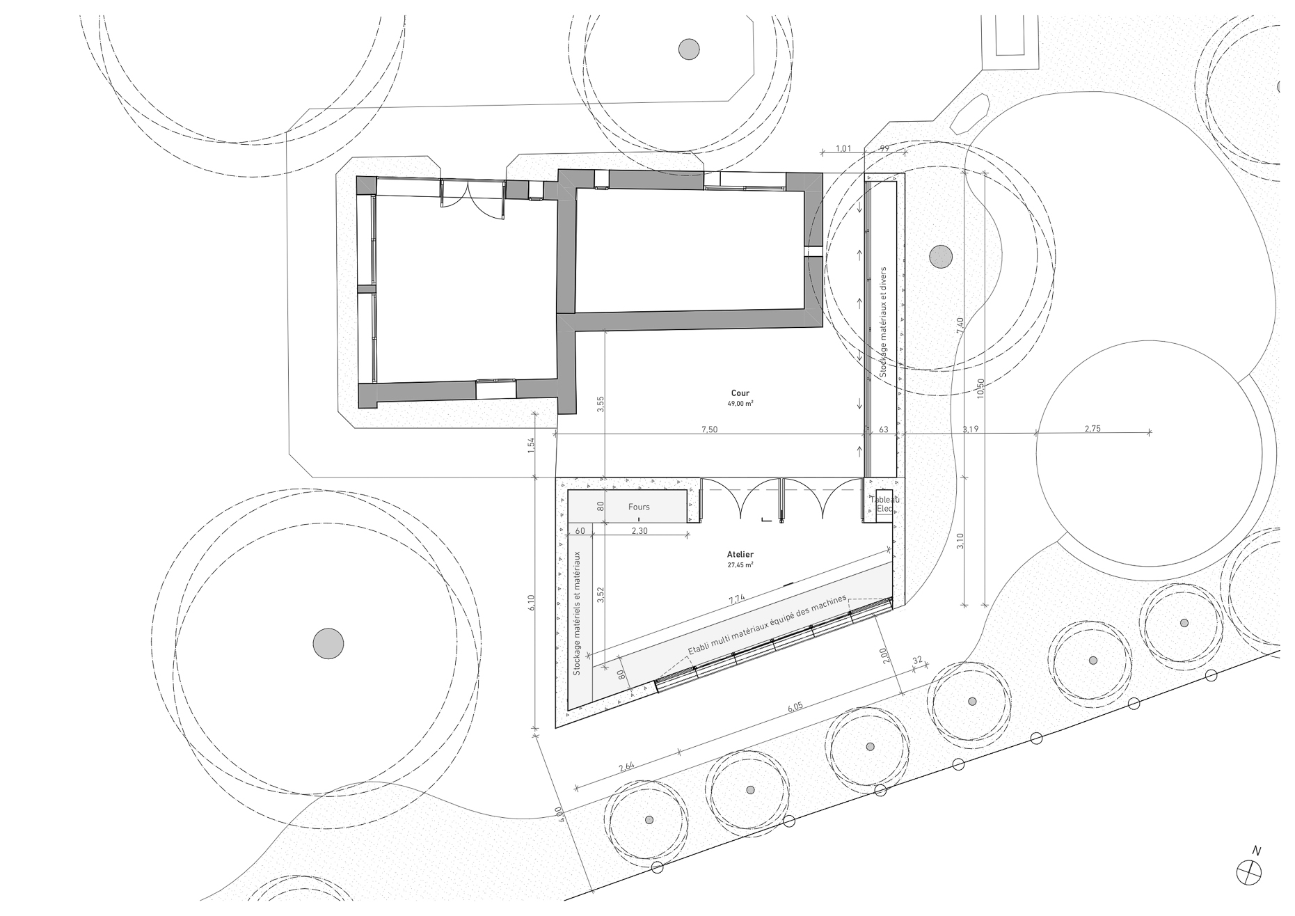
L’atelier s’établit dans un volume généreux, à la hauteur confortable. Orienté nord-ouest/sud-est, il se veut traversant, autant par la vue que par la ventilation naturelle.
-
-
L’accès se fait depuis la cour intérieure, par deux double portes. Une large verrière fait face à l’entrée. S’élevant jusqu’au faîtage, elle baigne de lumière naturelle le volume, le linéaire de plan de travail de l’atelier.
-
-
Un mur habité se dresse entre la cour et l’espace paysager accueillant les crépitements des braises des grillades d’été. Cette épaisseur permet le stockage de divers éléments à l’abris des intempéries.
-
-
-
Un travail de recherche a été mené sur la matérialité des murs périphériques de l'atlier, liant les galets du site au béton. Quant à la serrurerie, il a été choisi l'emploi de l'galets du site au acier oxydé, pour son caractère brut et résistant. Il est également utilisé pour la verrière de l'atelier.
-
-
Le projet de rénovation de la piscine s’exprime en premier lieu par la création d’une terrasse périphérique, dallée de pierre naturelle. Ce dallage est le support du pool house, qui s’implante à distance et dans la largeur du bassin.
-
-
L'ensemble du pool house est construit en acier oxydé, s'inscrivant en continuité de l'atelier tout en profitant des avantages structurels de l'acier et l'esthétique de cette matière brute faisant l'éloge du temps.
-
-
-
-
Situé sur la commune de Livron-sur-Drôme, le projet consiste en la construction d’un atelier, dans lequel le propriétaire pourra façonner de ses mains le bois, le métal et le verre.
-
-
L’atelier prend place au sud du volume annexe et s’articule avec lui par le biais d’une cour intérieure. Par ce creux, le projet reprend la logique préexistante d’implantation du bâti. La cour offre un espace extérieur protégé du vent à l’expression manuelle.
-
-
-
-
-
-
Les usages techniques et récréatifs prennent place dans une épaisseur travaillée en deux alcôves. L’une, accessible par l’arrière du volume, accueille le système de filtration et de pompage de la piscine. L’autre, en dialogue frontal avec le bassin, offre un espace de rangement bas, surmonté d’une banquette.
-
-
-
Le toit du pool house se prolonge en une pergola défiant les lois de la gravité et apportant de l’ombre sur l’espace de convivialité que représente la banquette.
-