-
Musée Didelle
Loz'expo
La Garde Guérin, Lozère (48), France
Projet de fin d'études - non construit
Le projet de fin d'études a été pour nous l'occasion d'interroger la place de l'art contemporain dans un territoire rural, celui de la Lozère. Notre rencontre avec Bernard Didelle, artiste sculpteur appartenant au courant art concret, nous a poussé à développer notre réflexion sur ce sujet et à concevoir un musée d'art contemporain s'inspirant de son art.
-
-
-
Le paysage de la Garde Guérin s’identifie également par la trace de la main de l’Homme. Juxtapositions et empilements de blocs de grès forment murs et foyers dans une unité de couleurs et de matérialités. Leurs élévations en direction de la voûte céleste marquent un enchaînement de plans s’implantant dans le grand paysage.
-
-
Ces murs de pierres appartiennent au patrimoine de ce lieu. Cette notion de patrimoine est indéniablement au cœur de notre intervention architecturale et paysagère. L’histoire appartient à celles et ceux qui la racontent, et c’est à notre tour de raconter la nôtre.
Nous partageons une vision progressiste de notre rapport avec ce patrimoine qui nous est transmis. Animer ces vieux murs est une manière optimiste de les conserver et de prolonger leur existence dans le temps.
-
-
Ô paysage. Qu’il soit d’eau ou de roche, de terre ou de ciel, il nous apparaît toujours comme maître incontestable des lieux. Composer avec lui devient une évidence. Une obligation ?
Pour nous l’architecture se positionne comme contemplative sur ces images infinies. Elle peut bien entendu devenir elle-même paysage, tout en gardant une forme d’humilité et de respect pour son environnement. -
-
La Garde Guérin fait partie de ces lieux où l’Homme ressent sa petitesse face à cette immensité minérale et végétale, dont la seule limite est l’horizon. Il y a quelque chose de magique à chaque pas que nous faisons. Chaque mètre parcouru nous dévoile un nouveau paysage. Le temps passe et l’use, lui offrant une nouvelle robe à chaque instant. Les couleurs flattent nos yeux et nous inspirent, rêveurs que nous sommes.
-
-
Ces pierres ont une histoire, elles nous la chuchotent, le temps en est témoin. Telle une relique, le château de la Garde se dresse encore sur son trône de rocs, marqué par le vent et la pluie des siècles passés.
-
-
-
Le projet est développé dans la volonté d’apporter une plus-value au village dans ses usages. Nous retrouvons ainsi une salle polyvalente et un bar ouvert à tous au coeur de la cour du château et donnant sur une scène en plein air au niveau du pré. Ces espaces seront idéals pour toutes sortes de festivités et de rassemblements, dialoguant directement avec le grand paysage. L’accès au belvédère du toit de la tour existante est repensé, de sorte à le rendre plus aisé et plus sécurisé.
-
-
-
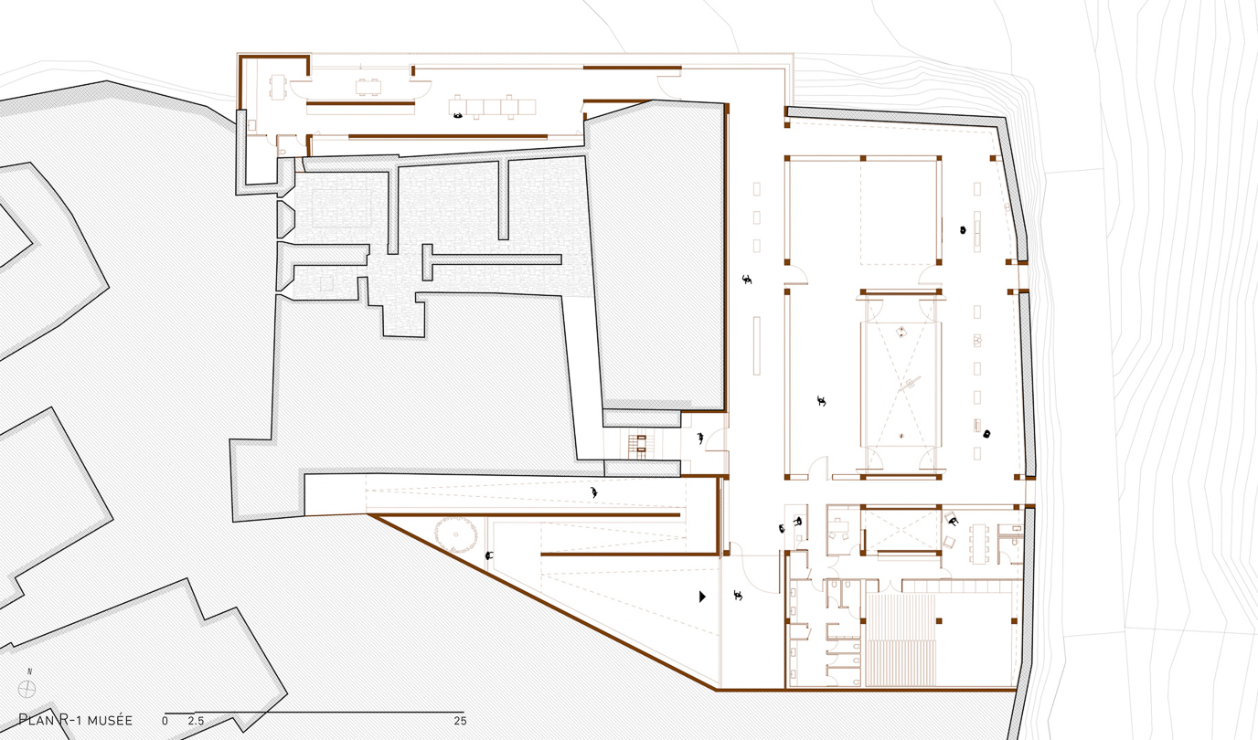
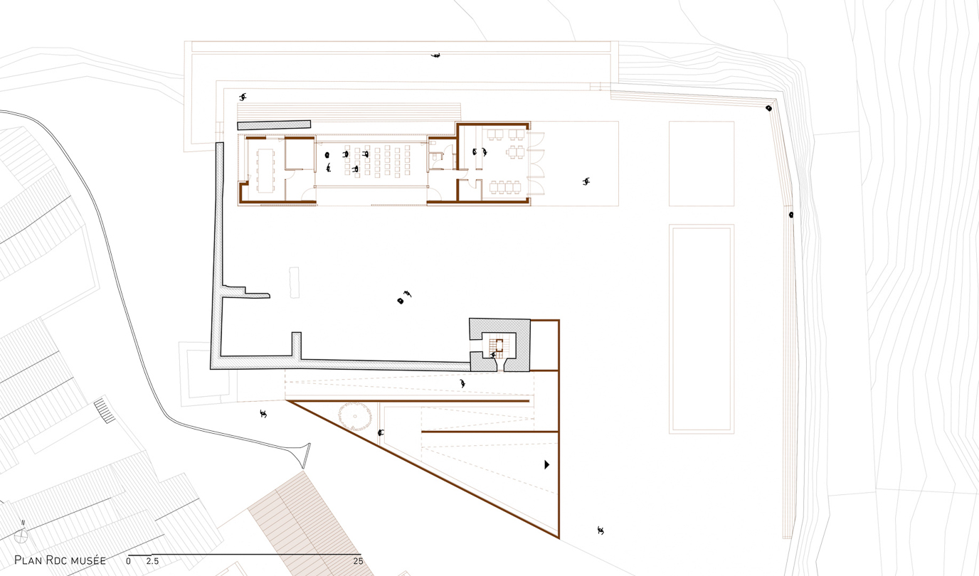
Le musée se déploie sous le grand pré au pied des ruines du château et trouve son accès sur la rue menant à l’église.
-
-
Un atelier complète le musée dans son plan, dans lequel divers artistes pourront s’installer pour quelques mois. Les œuvres issues de ces résidences trouveront place dans la salle des expositions temporaires du musée pour quelque temps.
-
-
-
-
Le projet de musée est inscrit dans un projet plus global. L’idée est de créer un lieu où des artistes issus de territoires ruraux vont pouvoir venir se ressourcer, expérimenter, créer, et faire découvrir leur art aux visiteurs de tous horizons, ici à La Garde Guérin.
-
-
-
-
-
-
-
-
Ce projet apportera, au-delà du passage du visiteur, des habitants supplémentaires, participant ainsi à faire vivre le village tout au long de l’année.
-
-
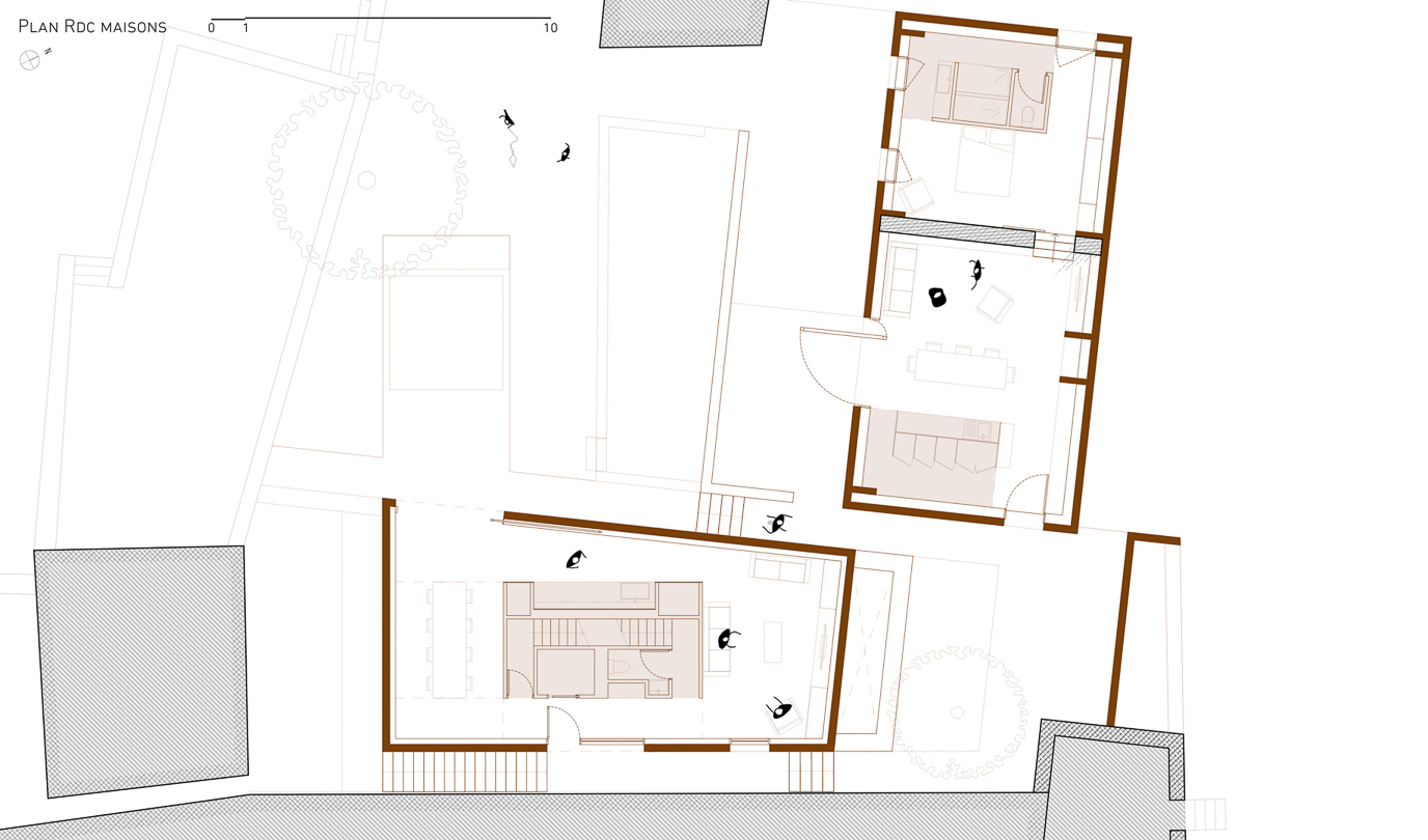
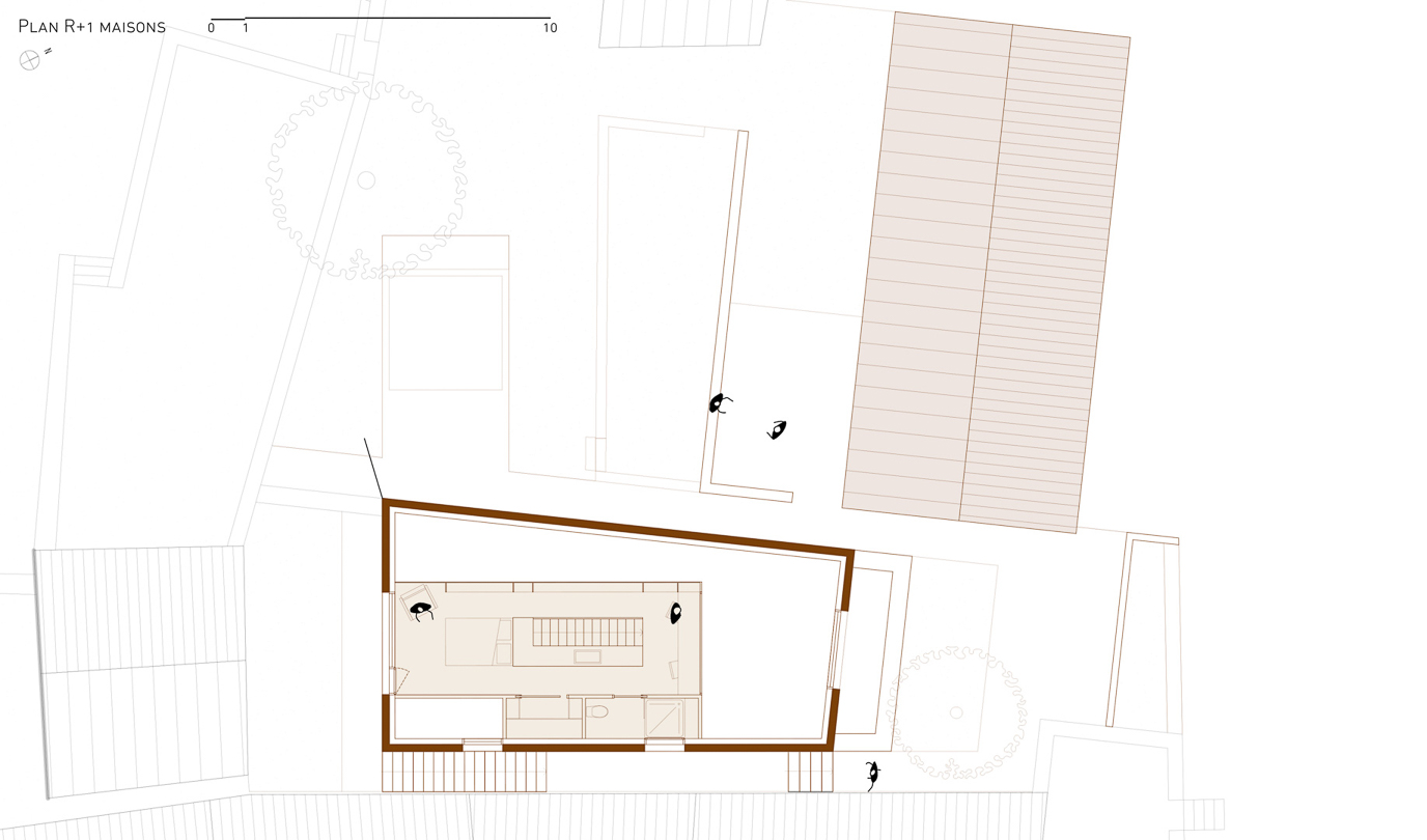
Une maison est mise à disposition des artistes occupant l’atelier du musée. Elle est édifiée en lieu et place de l’ancienne ferme du château, et pourra être louée à des vacanciers l’été.
-
-
Une seconde maison est bâtie à proximité de celle des artistes. Celle-ci sera le nouveau foyer de la famille du conservateur du musée.
-
-
-
-
-
-
-
